1
/
de
1
MISHub QI
A Importância de Diferenciar o Nível das Áreas Molhadas na Construção Civil
A Importância de Diferenciar o Nível das Áreas Molhadas na Construção Civil
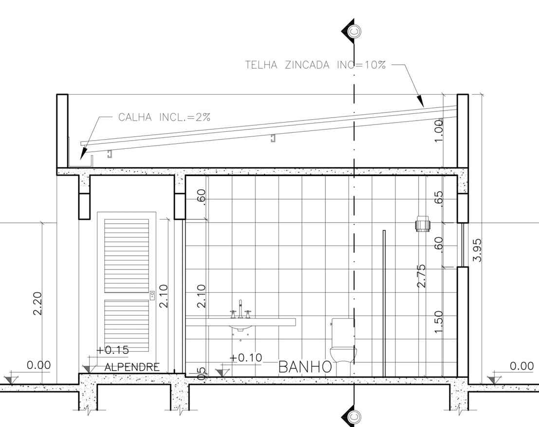
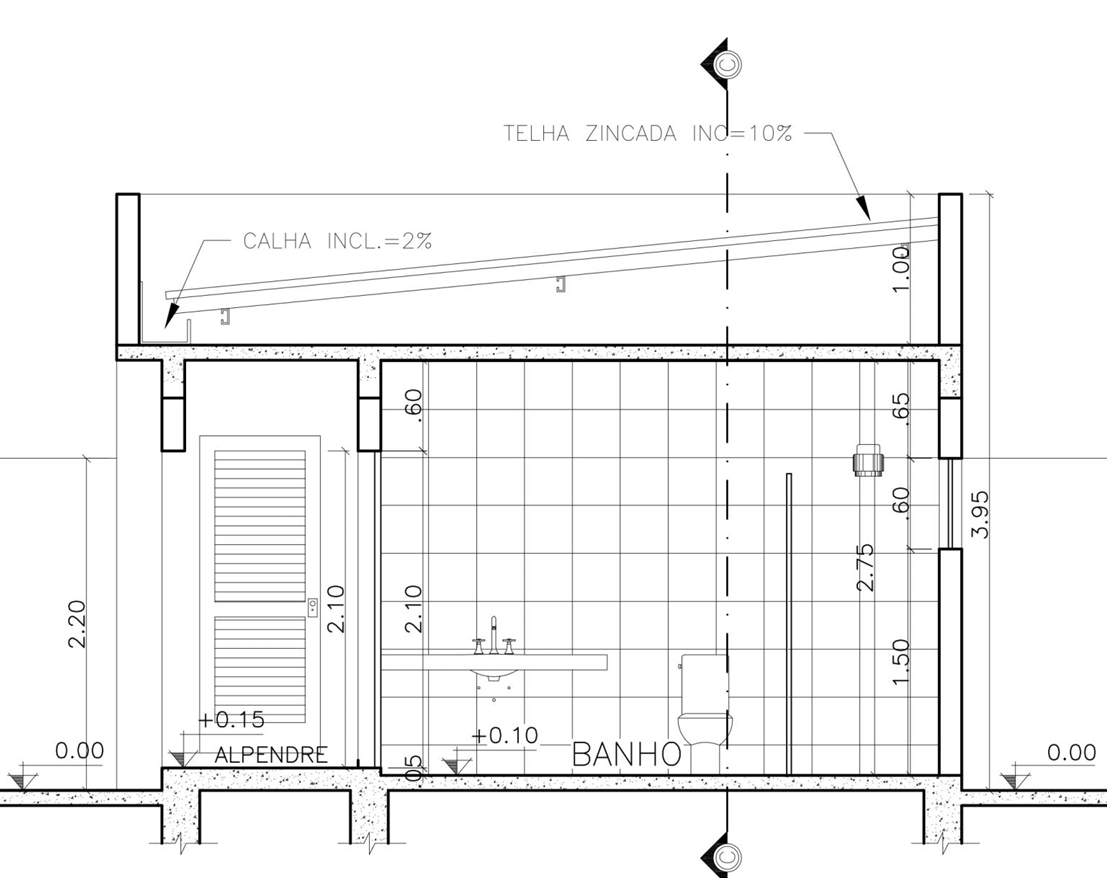
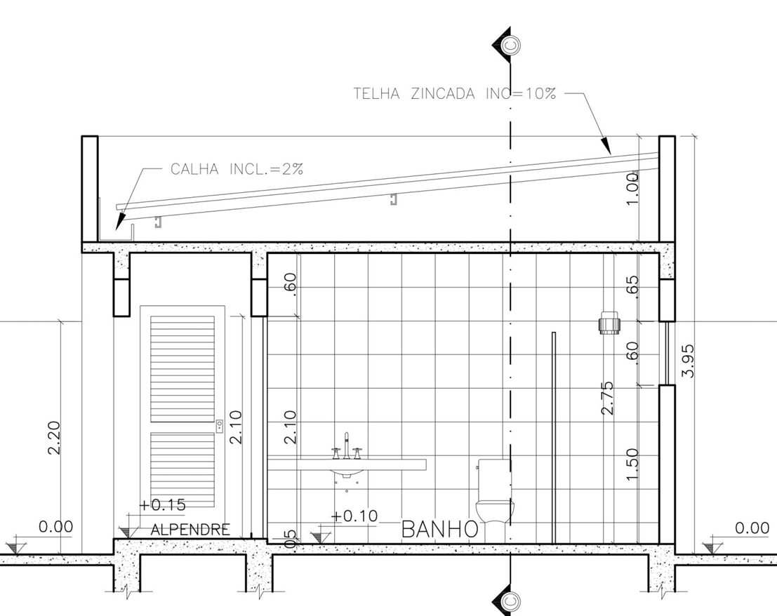
Deixar as áreas molhadas, como cozinha e casa de banho, em um nível ligeiramente mais baixo que o restante do pavimento é uma prática comum na construção civil devido a várias razões funcionais e de segurança. Aqui estão os principais motivos:
1. Prevenção de Inundações
- Áreas molhadas estão mais sujeitas a vazamentos de água provenientes de torneiras, chuveiros ou tubagens.
- Ao deixá-las em um nível mais baixo, a água derramada não escorrerá para outras áreas da casa, reduzindo o risco de danos em pisos secos, como salas e quartos.
3. Cumprimento de Normas de Construção
- Muitos regulamentos de construção exigem que áreas molhadas tenham níveis inferiores para mitigar riscos de alagamento e facilitar a manutenção da higiene.
- Essa prática está alinhada com as normas europeias que recomendam o uso de declives em áreas molhadas.
4. Melhoria da Higiene
- Ao evitar que a água se espalhe para áreas secas, reduz-se o risco de proliferação de mofo, bactérias e outros contaminantes em materiais menos resistentes à humidade.
5. Proteção de Acabamentos
- Pisos em áreas secas, como madeira ou laminados, não são projetados para suportar a umidade contínua. Mantê-los separados por uma diferença de nível protege esses materiais.
6. Praticidade em Manutenção
- Se ocorrerem vazamentos em áreas molhadas, o nível inferior pode ajudar a conter a água, facilitando os reparos sem causar grandes transtornos.
Referências Bibliográficas
INTERNATIONAL JOURNAL OF PROJECT MANAGEMENT. Floor Drainage and Water Resistance in Modern Architecture. International Journal of Project Management, v. 12, n. 3, p. 315–320, 2019.
RICHARDSON, W. L. Principles of Residential Construction. New York: McGraw-Hill, 1981.
Autor: Eng.º Francisco Quisele Jr.
Data de publicação: 21/11/24
Partilhar
